Opmeten en uitwerken bestaande toestand

werkwijze:

1. Opmeten van het gebouw
Ik kom ter plaatse om alle relevante ruimtes, constructies en elementen nauwkeurig op te meten. Hierbij besteed ik aandacht aan muren, raam- en deuropeningen, niveauverschillen en specifieke bouwkundige details.

2. Uitwerken van gedetailleerde 2D-plannen
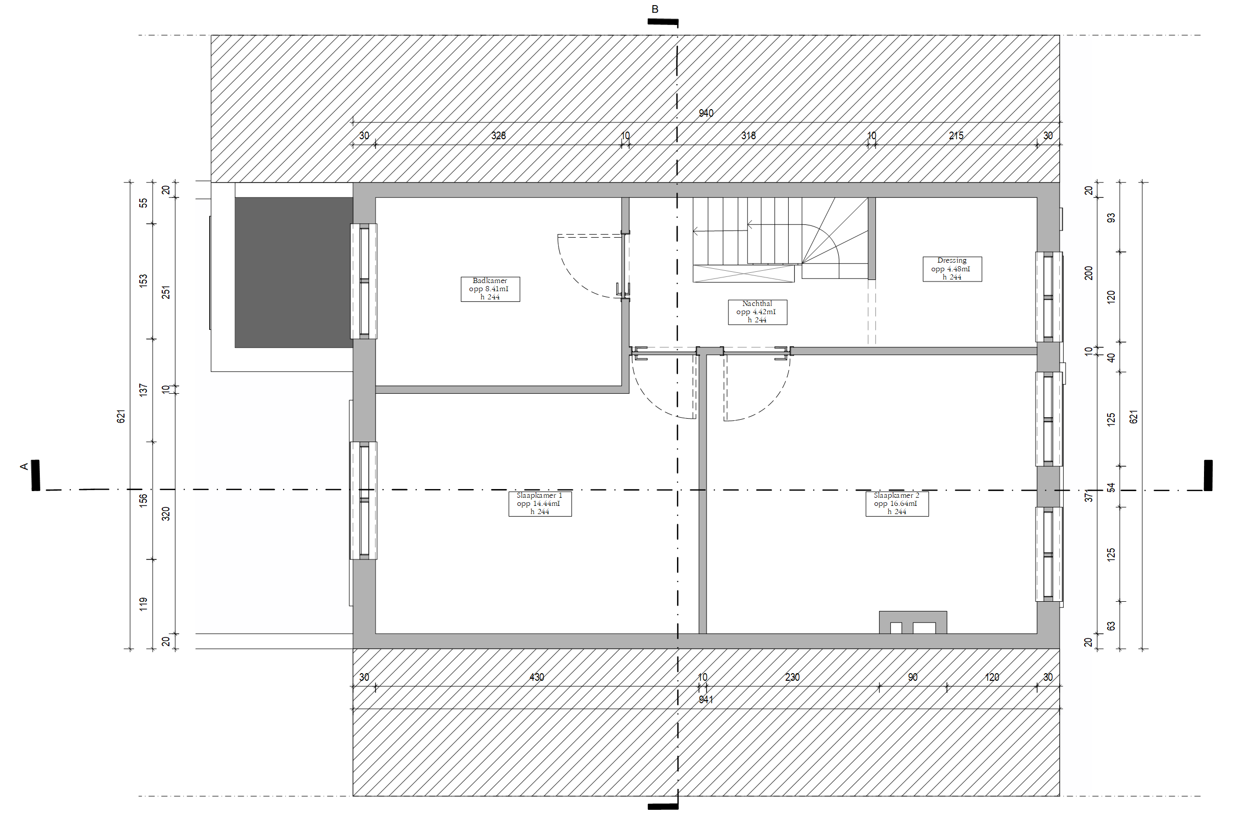
Op basis van de opmetingen werk ik per verdieping een volledig en helder 2D-plan uit in Vectorworks. Deze plannen geven een exact beeld van de bestaande toestand en vormen het fundament voor verdere modellering.

3. Modelleren in 3D (SketchUp)
Op basis van de 2D-plannen werk ik het volledige gebouw uit in een nauwkeurig 3D-model in SketchUp. Daarbij maak ik gebruik van zelf ontwikkelde Dynamic Components voor ramen en binnendeuren. Deze slimme componenten passen zich automatisch aan de juiste afmetingen en eigenschappen aan, wat zorgt voor een efficiënt, consistent en uiterst precies model.

4. Opmaak van de plannenset in LayOut
Wanneer het 3D-model volledig is uitgewerkt, maak ik in LayOut een overzichtelijke en professionele plannenset op. Alle plannen worden daarbij volledig benoemd, geannoteerd en bemaat, zodat ze klaar zijn voor gebruik door architecten, aannemers en andere betrokken partijen.

Onderstaande beelden tonen een greep uit reeds uitgewerkte bestaande toestanden.

Vorige
Vorige

Renders

Volgende
Volgende

Bouwen woning met loods (vectorworks)