Verbouwen van een woning (vectorworks)
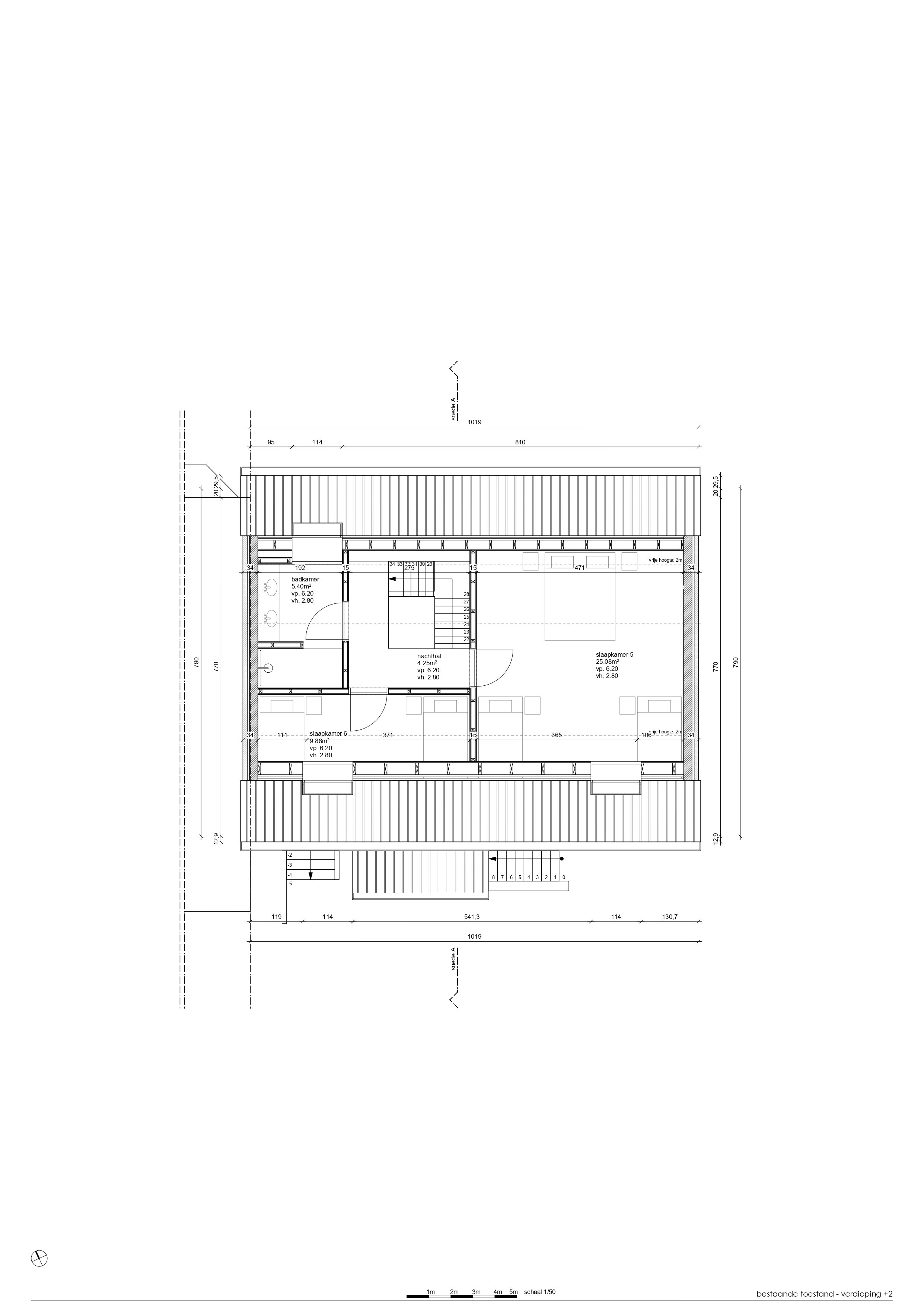
In opdracht van een architect werd de nieuwe toestand uitgewerkt op basis van het ontwerp en de geldende stedenbouwkundige voorschriften. Het dossier bevat duidelijke plannen van de nieuwe situatie, waaronder grondplannen, gevels, doorsneden, terreinprofiel en een correct ingemeten inplanting. De documentatie geeft een helder en volledig beeld van de geplande ingreep en ondersteunt de architect bij een vlotte en onderbouwde vergunningsaanvraag.